%20Hamlet%20%26%20Anthracite-min.jpg)
Single Classrooms
Expand your school quickly with our UK made single modular classrooms. Fully compliant with the latest building regulations, our complete turnkey service delivers high-quality learning spaces on time and on budget.
GET A free quote 📞 01405 516229
Fast
Installation
Custom
Layouts
Reduced
Disruption
Compliant
& Safe
Nationwide delivery
Tested &
Certified
Ideas Gallery
%20Hamlet%20%26%20Anthracite-min.jpg)

%20Thermowood%20Clad%20WEBSITE-min.jpg)

-min.jpg)
-min.jpg)
-min.png)

What’s included
Optional Extras
Some of our most popular optional items
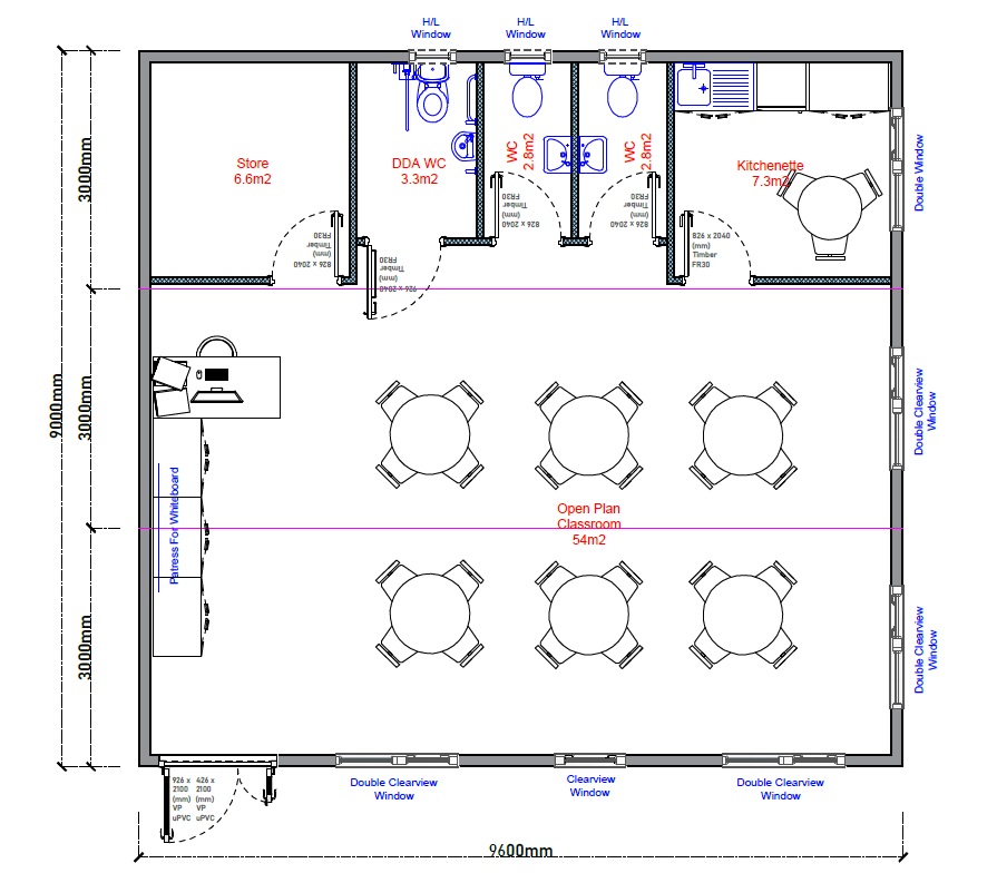
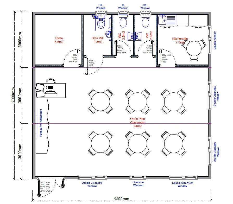
Layout ideas
Click the layouts below to view our some recommended configurations.
Enquire about a small modular classroom
-min.jpg)
Products we use




%20Hamlet%20%26%20Anthracite-min.jpg)
-min.png)
-min.png)

-min.jpg)
-min.png)







%20--min.jpg)


%20Bi%20Folding%20Door-min.jpg)







