
4 – 8 Person Modular Office (43m2 - 72m2)
Get the space you need, when you need it. Our 4 – 8 person modular offices are designed to deliver fast and fully bespoke layouts without compromise. Each unit is built to your exact requirements, providing a smart, scalable workspace that grows with your business. With high quality British manufacturing, full building regulation compliance and installation handled by experts, you can count on performance at outstanding value.
GET A free quote 📞 01405 516229British Made
Custom Floor Plans
Building Reg
Compliant
20 Year Warranty
Nationwide Delivery
Flexible Finance
Ideas Gallery





-min.png)

-min.png)
What’s Included
Our standard specification - built for long lasting performance
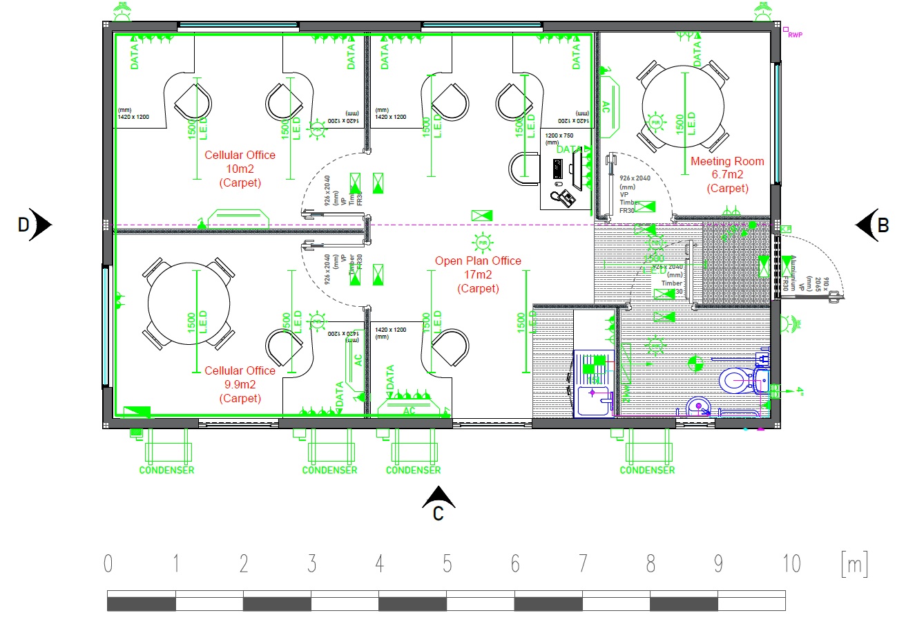
Layout Ideas
Click the layouts to view design ideas

Flexible Finance Available
Buy
Purchase your building outright
Lease Purchase
Spread payments over an agreed term
Hire
Weekly rental over 2 - 5 years
Enquire about our
4 – 8 Person Modular Office (43m2 - 72m2)

Products we use





-min.jpeg)
-min.jpg)










-min.png)




%20Clad-min.png)
-min.jpg)

